メインステージ北千住Ⅴ 足立区千住東[マンション]

メインステージ北千住Ⅴ 足立区千住東[マンション]

マンション[足立区千住東]

『お部屋さがし全力サポート!』東京東エリアの賃貸物件検索サイト

  • 0120-719-686
  • 10:00~18:00/定休日:毎週火曜日(1~3月は無休)

物件詳細

メインステージ北千住Ⅴ 足立区千住東[マンション]

メインステージ北千住Ⅴ 足立区千住東[マンション] の物件詳細ページです。

物件種別: マンション

お問い合わせ番号:kt0000079149

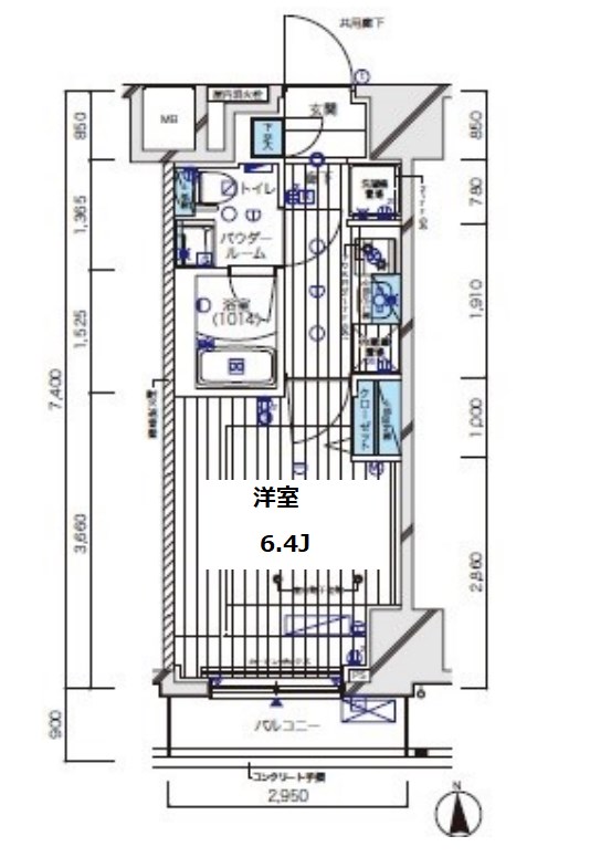
間取り(面積)

1K

( 21.44㎡ )

賃料(管理費等)

9.0万円

( 20000円 )

交通: 東京メトロ日比谷線 北千住駅 徒歩8分

敷金/礼金: - / 1ヶ月

保証金/敷引/償却金: - / - / -

所在地: 足立区千住東

築年月: 2018年3月

ポイント

ネット無料!ペット相談可!

問い合わせ(無料)

TEL: 03-3888-5701

お問い合わせ番号: kt0000079149

QRコード

資料請求などはこちら

問い合わせ(無料)

TEL: 03-3888-5701

お問い合わせ番号: kt0000079149

スタッフからのコメント

1月から3月まで無休で営業しております。家賃、初期費用相談、学生、新社会人、転勤、単身の方はお問合せ下さい。

セールスポイント

特徴 防犯カメラ,外壁タイル張り,分譲タイプ,2F以上,オートロック,モニタ付オートロック,ダブルロック,ディンプルキー,セキュリティ有り,通風良好,保証人(不要),カード決済可(入居時費用)
設備 エレベーター,敷地内ゴミ置き場,内階段,宅配BOX,システムキッチン,ガスコンロ設置済,2口コンロ,ガスキッチン,バス・トイレ別,バス有,浴室乾燥,脱衣所,シャワー,トイレ有,洗面台,洗面所独立,洗面化粧台,エアコン,光ファイバー,ネット使用料不要,インターホン,TVインターホン,ガス給湯,フローリング,全居室フローリング,室内洗濯機置場,洗濯機置場,クローゼット,シューズボックス,収納有,ガス(都市ガス),電気
光ファイバー エレベーター 1基
天井高 空調 1基
部屋外設備 バルコニー
駐車場 駐輪場:有 バイク置き場:有
周辺施設 ショッピング施設:ルミネ北千住 839m
ショッピング施設:北千住マルイ 929m
ショッピング施設:千住ミルディス 929m
ショッピング施設:べるぽーと汐入東館 1706m

物件概要

物件名 メインステージ北千住Ⅴ
物件所在地 東京都足立区千住東1丁目18-14 周辺地図
交通機関 東京メトロ日比谷線 北千住駅 徒歩8分
東武伊勢崎線 牛田(東京)駅 徒歩10分
京成本線 京成関屋駅 徒歩11分
専有面積 21.44㎡
所在階/地上階数 1 / 9 部屋向き
建物構造 鉄筋コンクリート 築年月 2018年3月
賃料 9.0万円 管理費等 20000円
敷金 - 礼金 1ヶ月
積増し敷金 1ヶ月 積増し理由 ペット可
その他一時金 カギ交換:29,700円 AMLクラブサポート費:16,500円 退去時ルームクリーニング費用:49,500円 その他費用
損害保険 有 
契約形態 普通借家契約 期間 契約期間:2年
保証会社 必須 初回保証料、賃料総額の50%~ 保証人代行 必須
法人契約
現況 居住中 入居時期 相談 
入居条件 ペット(可),事務所(不可),楽器等の使用(不可),性別(不問),単身(可),二人(不可),法人(可)
IT重説

その他

取引態様 仲介 自社管理番号 kt0000079149
情報更新日 2025年10月2日 次回更新予定日 2025年10月16日
不動産会社コード 5998 物件管理コード 1122115213330001114030
  • ※間取りの「S」はサービスルーム(納戸)です。
  • ※QRコードは(株)デンソーウェーブの登録商標です。

資料請求などはこちら

問い合わせ(無料)

TEL: 03-3888-5701

お問い合わせ番号: kt0000079149

お問い合わせ先:株式会社CLCコーポレーション 北千住支店

所在地 : 東京都足立区千住2丁目18-11田辺ビル1F
TEL : 03-3888-5701
免許番号 : 東京都知事(5)第83270号
加盟団体 : (公社)全日本不動産協会会員,(公社)首都圏不動産公正取引協議会加盟

この部屋を見学予約

ホームへ戻る