北小岩5丁目貸家 江戸川区北小岩[戸建]

北小岩5丁目貸家 江戸川区北小岩[戸建]

戸建[江戸川区北小岩]

『お部屋さがし全力サポート!』東京東エリアの賃貸物件検索サイト

  • 0120-719-686
  • 10:00~18:00/定休日:毎週火曜日(1~3月は無休)

物件詳細

北小岩5丁目貸家 江戸川区北小岩[戸建]

 

北小岩5丁目貸家 江戸川区北小岩[戸建] の物件詳細ページです。

物件種別: 戸建

お問い合わせ番号:ko0000076364

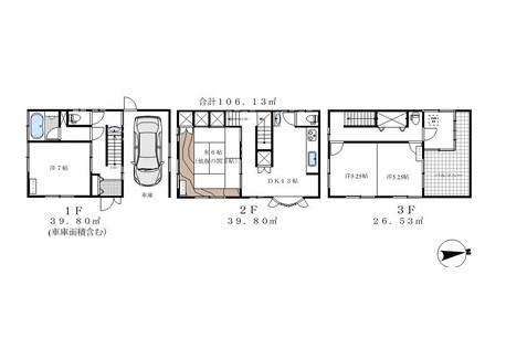
間取り(面積)

3DK

( 106.13㎡ )

賃料(管理費等)

15.0万円

( 0円 )

交通: 京成本線 江戸川駅 徒歩9分

敷金/礼金: 1ヶ月 / 1ヶ月

保証金/敷引/償却金: - / - / -

所在地: 江戸川区北小岩

築年月: 1999年8月

ポイント

ペット相談可能♪大型犬も相談可能です♪

問い合わせ(無料)

TEL: 03-5622-7123

お問い合わせ番号: ko0000076364

QRコード

資料請求などはこちら

問い合わせ(無料)

TEL: 03-5622-7123

お問い合わせ番号: ko0000076364

セールスポイント

特徴 閑静な住宅街,上階無し,振り分け,2面採光,3面採光
設備 3口以上コンロ,バス・トイレ別,追い焚き風呂,浴室に窓,洗面所独立,エアコン,ガス給湯,フローリング,室内洗濯機置場,クローゼット,シューズボックス,押入,ガス(都市ガス),電気
天井高 空調 1基
部屋外設備 バルコニー
駐車場 駐車場:付(無料)
周辺施設 コンビニ:ローソン 北小岩四丁目店 522m

物件概要

物件名 北小岩5丁目貸家
物件所在地 東京都江戸川区北小岩5丁目21-12
交通機関 京成本線 江戸川駅 徒歩9分
京成本線 京成小岩駅 徒歩10分
中央・総武線各停 小岩駅 徒歩18分
専有面積 106.13㎡
所在階/地上階数 1-3 / 3 部屋向き
建物構造 木造 築年月 1999年8月
賃料 15.0万円 管理費等 0円
敷金 1ヶ月 礼金 1ヶ月
積増し敷金 - 積増し理由
損害保険 無 
契約形態 定期借家契約 期間 契約期間:2年
保証会社 必須 お問い合わせください。 保証人代行 必須
現況 居住中 入居時期 相談 
入居条件 ペット(相談)
IT重説

その他

取引態様 仲介 自社管理番号 ko0000076364
情報更新日 2025年11月17日 次回更新予定日 2025年12月1日
不動産会社コード 2107207 物件管理コード 1122115213330001124246
  • ※間取りの「S」はサービスルーム(納戸)です。
  • ※QRコードは(株)デンソーウェーブの登録商標です。

資料請求などはこちら

問い合わせ(無料)

TEL: 03-5622-7123

お問い合わせ番号: ko0000076364

お問い合わせ先:株式会社CLCコーポレーション 小岩店

所在地 : 東京都江戸川区南小岩7丁目28-2
TEL : 03-5622-7123
免許番号 : 東京都知事(5)第83270号
加盟団体 : (公社)全日本不動産協会会員,(公社)首都圏不動産公正取引協議会加盟

この部屋を見学予約

ホームへ戻る