オクドテラス 葛飾区奥戸[アパート]

オクドテラス 葛飾区奥戸[アパート]

アパート[葛飾区奥戸]

『お部屋さがし全力サポート!』東京東エリアの賃貸物件検索サイト

  • 0120-719-686
  • 10:00~18:00/定休日:毎週火曜日(1~3月は無休)

物件詳細

オクドテラス 葛飾区奥戸[アパート]

オクドテラス 葛飾区奥戸[アパート] の物件詳細ページです。

物件種別: アパート

お問い合わせ番号:ko0000076699

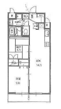
間取り(面積)

1LDK

( 55.5㎡ )

賃料(管理費等)

11.6万円

( 10000円 )

交通: 総武線快速 新小岩駅 徒歩19分

敷金/礼金: 1ヶ月 / 1ヶ月

保証金/敷引/償却金: - / - / -

所在地: 葛飾区奥戸

築年月: 2012年10月

ポイント

設備充実のマンション!ご家族にピッタリですね

問い合わせ(無料)

TEL: 03-5622-7123

お問い合わせ番号: ko0000076699

QRコード

資料請求などはこちら

問い合わせ(無料)

TEL: 03-5622-7123

お問い合わせ番号: ko0000076699

セールスポイント

特徴 南面バルコニー,2F以上,オートロック,モニタ付オートロック,セキュリティ有り,振り分け,カード決済可(入居時費用)
設備 エレベーター,敷地内ゴミ置き場,宅配BOX,システムキッチン,ガスコンロ設置済,2口コンロ,グリル,ガスキッチン,バス・トイレ別,バス有,脱衣所,シャワー,トイレ有,温水洗浄便座,洗面台,洗面所独立,洗面所にドア,洗面化粧台,エアコン,光ファイバー,インターホン,TVインターホン,給湯,ガス給湯,3点給湯,フローリング,全居室フローリング,室内洗濯機置場,洗濯機置場,クローゼット,クローゼット2ヶ所,シューズボックス,全居室収納,押入,収納有,ガス(都市ガス),電気
光ファイバー エレベーター 1基
天井高 空調 1基
部屋外設備 バルコニー
駐車場 駐車場:無 駐輪場:有
周辺施設 スーパー:ライフ 奥戸店 71m
ドラッグストア:どらっぐ ぱぱす 奥戸店 77m
スーパー:株式会社ライフコーポレーション奥戸店 123m
スーパー:アタック 東新小岩店 509m
コンビニ:セブンイレブン 葛飾奥戸3丁目店 589m

物件概要

物件名 オクドテラス
物件所在地 東京都葛飾区奥戸3丁目22-14 周辺地図
交通機関 総武線快速 新小岩駅 徒歩19分
京成押上線 京成立石駅 徒歩25分
京成押上線 青砥駅 徒歩33分
専有面積 55.5㎡
所在階/地上階数 2 / 4 部屋向き 南西
建物構造 軽量鉄骨 築年月 2012年10月
賃料 11.6万円 管理費等 10000円
敷金 1ヶ月 礼金 1ヶ月
保証金 - 更新料 新賃料 1ヶ月
積増し敷金 - 積増し理由
その他一時金 保険:20,000円 鍵交換代:38,500円 プレミアデスク:22,000円 その他費用
損害保険 有 
契約形態 普通借家契約 期間 契約期間:2年
保証会社 必須 初回総賃料の40%~ 月次保証料:賃料総額の1.5% 年次1万円 保証人代行 必須
法人契約
現況 退去予定 入居時期 相談 
入居条件 ペット(不可),事務所(不可),楽器等の使用(不可),法人(可)
IT重説

その他

取引態様 仲介 自社管理番号 ko0000076699
情報更新日 2025年12月25日 次回更新予定日 2026年1月8日
不動産会社コード 2107207 物件管理コード 1122115213330001131372
  • ※間取りの「S」はサービスルーム(納戸)です。
  • ※QRコードは(株)デンソーウェーブの登録商標です。

資料請求などはこちら

問い合わせ(無料)

TEL: 03-5622-7123

お問い合わせ番号: ko0000076699

お問い合わせ先:株式会社CLCコーポレーション 小岩店

所在地 : 東京都江戸川区南小岩7丁目28-2
TEL : 03-5622-7123
免許番号 : 東京都知事(5)第83270号
加盟団体 : (公社)全日本不動産協会会員,(公社)首都圏不動産公正取引協議会加盟

この部屋を見学予約

ホームへ戻る