パレ・ドール千駄木 文京区千駄木[マンション]

パレ・ドール千駄木 文京区千駄木[マンション]

マンション[文京区千駄木]

『お部屋さがし全力サポート!』東京東エリアの賃貸物件検索サイト

  • 0120-719-686
  • 10:00~18:00/定休日:毎週火曜日(1~3月は無休)

物件詳細

パレ・ドール千駄木 文京区千駄木[マンション]

パレ・ドール千駄木 文京区千駄木[マンション] の物件詳細ページです。

物件種別: マンション

お問い合わせ番号:np0000112267

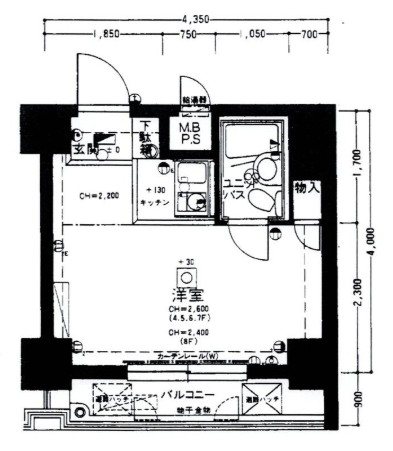
間取り(面積)

1R

( 17.4㎡ )

賃料(管理費等)

7.0万円

( 5000円 )

交通: 東京メトロ千代田線 千駄木駅 徒歩1分

敷金/礼金: 1ヶ月 / 1ヶ月

保証金/敷引/償却金: - / - / -

所在地: 文京区千駄木

築年月: 1984年10月

ポイント

分譲賃貸!やっぱり駅近が一番!谷根千エリアのライフスタイル!

問い合わせ(無料)

TEL: 03-3801-3526

お問い合わせ番号: np0000112267

QRコード

資料請求などはこちら

問い合わせ(無料)

TEL: 03-3801-3526

お問い合わせ番号: np0000112267

セールスポイント

特徴 分譲タイプ,2F以上,角住戸,カード決済可(入居時費用)
設備 エレベーター,ガスコンロ設置済,IHクッキングヒーター,シャワー,バストイレ同室,洗面台,エアコン,ネット専用回線,TVインターホン,給湯,室内洗濯機置場,シューズボックス,押入,収納有,ガス(都市ガス),電気
光ファイバー エレベーター 1基
天井高 空調 1基
部屋外設備 バルコニー
周辺施設 スーパー:NOMURAYA 197m
コンビニ:セブンイレブン 文京千駄木店 203m
コンビニ:ローソン 千駄木店 270m
ドラッグストア:どらっぐぱぱす 谷中店 426m
ショッピング施設:谷中銀座商店街 482m
大学・短大:国立東京芸術大学 1082m

物件概要

物件名 パレ・ドール千駄木
物件所在地 東京都文京区千駄木2丁目33-9 周辺地図
交通機関 東京メトロ千代田線 千駄木駅 徒歩1分
山手線 日暮里駅 徒歩12分
東京メトロ千代田線 根津駅 徒歩10分
間取り詳細 洋室(7畳)
専有面積 17.4㎡
所在階/地上階数 6 / 8 部屋向き
建物構造 鉄骨鉄筋コンクリート 築年月 1984年10月
賃料 7.0万円 管理費等 5000円
敷金 1ヶ月 礼金 1ヶ月
保証金 - 更新料 新賃料 1ヶ月
積増し敷金 - 積増し理由
その他月次費用 入居サポート:1,100円
損害保険 有 料金:20000円 損保期間:24ヶ月 
契約形態 普通借家契約 期間 契約期間:2年
保証会社 必須 契約時、月額賃料等総額の50% 年毎10000円 保証人代行 必須
現況 入居時期 相談 
入居条件 単身(可)
IT重説

その他

取引態様 仲介 自社管理番号 np0000112267
情報更新日 2026年1月9日 次回更新予定日 2026年1月23日
不動産会社コード 65073 物件管理コード 1122115213330001131852
  • ※間取りの「S」はサービスルーム(納戸)です。
  • ※QRコードは(株)デンソーウェーブの登録商標です。

資料請求などはこちら

問い合わせ(無料)

TEL: 03-3801-3526

お問い合わせ番号: np0000112267

お問い合わせ先:株式会社CLCコーポレーション 日暮里店

所在地 : 東京都荒川区東日暮里6丁目60-6アピス日暮里1F
TEL : 03-3801-3526
免許番号 : 東京都知事(5)第83270号
加盟団体 : (公社)全日本不動産協会会員,(公社)首都圏不動産公正取引協議会加盟

この部屋を見学予約

ホームへ戻る