旭マンション 306号室 江東区南砂[マンション]

旭マンション 306号室 江東区南砂[マンション]

マンション[江東区南砂]

『お部屋さがし全力サポート!』東京東エリアの賃貸物件検索サイト

  • 0120-719-686
  • 10:00~18:00/定休日:毎週火曜日(1~3月は無休)

物件詳細

旭マンション 306号室 江東区南砂[マンション]

旭マンション 306号室 江東区南砂[マンション] の物件詳細ページです。

物件種別: マンション

お問い合わせ番号:mz0000098244

間取り(面積)

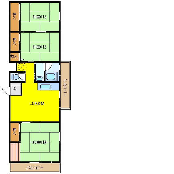
3DK

( 60㎡ )

賃料(管理費等)

14.5万円

( 5000円 )

交通: 東京メトロ東西線 南砂町駅 徒歩7分

敷金/礼金: 1ヶ月 / -

保証金/敷引/償却金: - / - / -

所在地: 江東区南砂

築年月: 1973年10月

ポイント

広々3DK物件♪徒歩圏内に大型ショッピング施設があり住環境良好です♪

問い合わせ(無料)

TEL: 03-5243-3651

お問い合わせ番号: mz0000098244

QRコード

資料請求などはこちら

問い合わせ(無料)

TEL: 03-5243-3651

お問い合わせ番号: mz0000098244

セールスポイント

特徴 2F以上,2面採光,保証人(不要),カード決済可(入居時費用)
設備 ガスコンロ設置可,2口コンロ,ガスキッチン,バス・トイレ別,バス有,追い焚き風呂,シャワー,トイレ有,温水洗浄便座,洗面台,エアコン,光ファイバー,給湯,ガス給湯,瞬湯,フローリング,一部フローリング,室内洗濯機置場,洗濯機置場,クローゼット,天袋,押入,収納有,収納4ヶ所以上,ガス(都市ガス),下水(公共下水),水道(公営),電気
光ファイバー エレベーター
天井高 空調 1基
部屋外設備 ベランダ
周辺施設 郵便局:江東南砂郵便局 303m
コンビニ:ローソン 南砂葛西橋通店 397m
ショッピング施設:TSUTAYA 南砂店 522m
レストラン:スシロー 455m
レストラン:藍屋 455m
レストラン:スシロー 455m
コンビニ:ファミリーマート 江東境川店 675m
コンビニ:ローソン 南砂二丁目店 558m
ドラッグストア:くすりの福太郎 南砂店 606m

物件概要

物件名 旭マンション 306号室
物件所在地 東京都江東区南砂4丁目16-22 周辺地図
交通機関 東京メトロ東西線 南砂町駅 徒歩7分
都営新宿線 西大島駅 徒歩22分
都営新宿線 大島(東京)駅 徒歩25分
間取り詳細 和室(6畳) 和室(6畳) 和室(8畳) DK(8畳)
専有面積 60㎡
所在階/地上階数 3 / 5 部屋向き
建物構造 鉄骨 築年月 1973年10月
賃料 14.5万円 管理費等 5000円
敷金 1ヶ月 礼金 -
積増し敷金 - 積増し理由
損害保険 有 
契約形態 普通借家契約 期間 契約期間:2年
保証会社 必須 初回:総賃料の50%~ 保証人代行 必須
現況 入居時期 即時 
IT重説

その他

取引態様 仲介 自社管理番号 mz0000098244
情報更新日 2026年4月6日 次回更新予定日 2026年4月20日
不動産会社コード 16056 物件管理コード 1122115213330001131931
  • ※間取りの「S」はサービスルーム(納戸)です。
  • ※QRコードは(株)デンソーウェーブの登録商標です。

資料請求などはこちら

問い合わせ(無料)

TEL: 03-5243-3651

お問い合わせ番号: mz0000098244

お問い合わせ先:株式会社CLCコーポレーション 瑞江店

所在地 : 東京都江戸川区瑞江2丁目3-15ソフィアスリー3F
TEL : 03-5243-3651
免許番号 : 東京都知事(5)第83270号
加盟団体 : (公社)全日本不動産協会会員,(公社)首都圏不動産公正取引協議会加盟

この部屋を見学予約

ホームへ戻る