ヒローズハイツⅡ 101号室 江戸川区南小岩[アパート]

ヒローズハイツⅡ 101号室 江戸川区南小岩[アパート]

アパート[江戸川区南小岩]

『お部屋さがし全力サポート!』東京東エリアの賃貸物件検索サイト

  • 0120-719-686
  • 10:00~18:00/定休日:毎週火曜日(1~3月は無休)

物件詳細

ヒローズハイツⅡ 101号室 江戸川区南小岩[アパート]

 

ヒローズハイツⅡ 101号室 江戸川区南小岩[アパート] の物件詳細ページです。

物件種別: アパート

お問い合わせ番号:ko0000077062

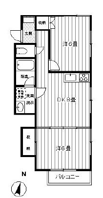
間取り(面積)

2DK

( 45.86㎡ )

賃料(管理費等)

8.2万円

( 0円 )

交通: 中央・総武線各停 小岩駅 徒歩16分

敷金/礼金: 1ヶ月 / 1ヶ月

保証金/敷引/償却金: - / - / -

所在地: 江戸川区南小岩

築年月: 1997年3月

ポイント

オールフローリング♪各室収納♪

問い合わせ(無料)

TEL: 03-5622-7123

お問い合わせ番号: ko0000077062

QRコード

資料請求などはこちら

問い合わせ(無料)

TEL: 03-5622-7123

お問い合わせ番号: ko0000077062

セールスポイント

特徴 振り分け,角住戸,2面採光,陽当たり良好,保証人(不要),カード決済可(入居時費用)
設備 システムキッチン,ガスコンロ設置済,3口以上コンロ,グリル,ガスキッチン,バス・トイレ別,バス有,脱衣所,シャワー,トイレ有,洗面台,洗面所独立,洗面所にドア,洗面化粧台,エアコン,エアコン2台,CATV,光ファイバー,インターホン,給湯,フローリング,全居室フローリング,シャッター,室内洗濯機置場,洗濯機置場,クローゼット,シューズボックス,押入,収納有,収納2ヶ所,ガス(プロパン),電気
光ファイバー エレベーター
天井高 空調 2基
部屋外設備 バルコニー
駐車場 駐車場:無 駐輪場:有
周辺施設 小学校:江戸川区立南小岩小学校 162m
スーパー:まいばすけっと 南小岩1丁目店 317m
スーパー:ローソンストア100 江戸川南小岩四丁目店 440m
コンビニ:セブンイレブン 江戸川東松本2丁目店 447m
ドラッグストア:くすりの福太郎 南小岩店 471m
幼稚園:白鳩保育園 471m
小学校:江戸川区立南小岩第二小学校 557m
コンビニ:セブンイレブン 南小岩5丁目店 535m
ドラッグストア:どらっぐぱぱす 南小岩店 639m
コンビニ:ファミリーマート 鹿骨五丁目店 527m

物件概要

物件名 ヒローズハイツⅡ 101号室
物件所在地 東京都江戸川区南小岩4丁目9-9 周辺地図
交通機関 中央・総武線各停 小岩駅 徒歩16分
京成本線 江戸川駅 徒歩27分
中央・総武線各停 新小岩駅 徒歩37分
間取り詳細 DK(7.5畳) 洋室(6畳) 洋室(6畳)
専有面積 45.86㎡
所在階/地上階数 1 / 2 部屋向き
建物構造 木造 築年月 1997年3月
賃料 8.2万円 管理費等 0円
敷金 1ヶ月 礼金 1ヶ月
積増し敷金 - 積増し理由
損害保険 有 料金:18000円 損保期間:24ヶ月 
契約形態 普通借家契約 期間 契約期間:2年
保証会社 必須 お問い合わせください。初回保証料:総賃料の50% 継続保証料:年次10,000円 保証人代行 必須
現況 入居時期 相談 
IT重説

その他

取引態様 仲介 自社管理番号 ko0000077062
情報更新日 2026年1月27日 次回更新予定日 2026年2月10日
不動産会社コード 2107207 物件管理コード 1122115213330001136968
  • ※間取りの「S」はサービスルーム(納戸)です。
  • ※QRコードは(株)デンソーウェーブの登録商標です。

資料請求などはこちら

問い合わせ(無料)

TEL: 03-5622-7123

お問い合わせ番号: ko0000077062

お問い合わせ先:株式会社CLCコーポレーション 小岩店

所在地 : 東京都江戸川区南小岩7丁目28-2
TEL : 03-5622-7123
免許番号 : 東京都知事(5)第83270号
加盟団体 : (公社)全日本不動産協会会員,(公社)首都圏不動産公正取引協議会加盟

この部屋を見学予約

ホームへ戻る