ルナリアⅣ 葛飾区東四つ木[アパート]

ルナリアⅣ 葛飾区東四つ木[アパート]

アパート[葛飾区東四つ木]

『お部屋さがし全力サポート!』東京東エリアの賃貸物件検索サイト

  • 0120-719-686
  • 10:00~18:00/定休日:毎週火曜日(1~3月は無休)

物件詳細

ルナリアⅣ 葛飾区東四つ木[アパート]

ルナリアⅣ 葛飾区東四つ木[アパート] の物件詳細ページです。

物件種別: アパート

お問い合わせ番号:mz0000098841

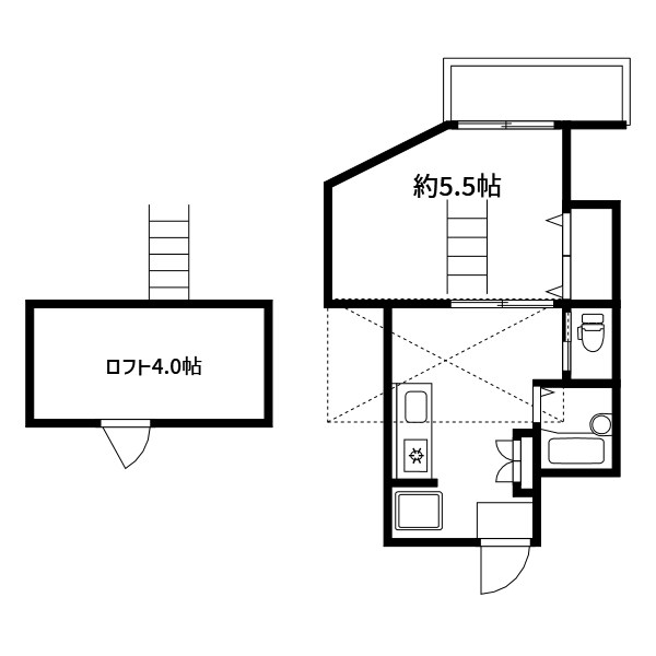
間取り(面積)

1K

( 20㎡ )

賃料(管理費等)

6.5万円

( 2000円 )

交通: 京成押上線 四ツ木駅 徒歩5分

敷金/礼金: 1ヶ月 / -

保証金/敷引/償却金: - / - / -

所在地: 葛飾区東四つ木

築年月: 2008年3月

ポイント

バストイレ別♪駅チカ♪

問い合わせ(無料)

TEL: 03-5243-3651

お問い合わせ番号: mz0000098841

QRコード

資料請求などはこちら

問い合わせ(無料)

TEL: 03-5243-3651

お問い合わせ番号: mz0000098841

セールスポイント

特徴 最上階,上階無し,2F以上,ロフト,カード決済可(入居時費用)
設備 24時間ゴミ出し可,敷地内ゴミ置き場,システムキッチン,IHクッキングヒーター,バス・トイレ別,バス有,温水洗浄便座,洗面2ボウル,エアコン,光ファイバー,インターホン,TVインターホン,給湯,ガス給湯,フローリング,全居室フローリング,室内洗濯機置場,クローゼット,シューズボックス,収納有,ガス(都市ガス),電気
光ファイバー エレベーター
天井高 空調 1基
部屋外設備 バルコニー
駐車場 駐輪場:有
周辺施設 コンビニ:セブンイレブン 葛飾東四つ木3丁目店 204m
コンビニ:ファミリーマート 京成四ツ木駅店 351m
スーパー:ビッグエー葛飾東四つ木店 487m
スーパー:ビッグ・エー 葛飾東四つ木店 487m
スーパー:グリーンマート東四ッ木店 588m

物件概要

物件名 ルナリアⅣ
物件所在地 東京都葛飾区東四つ木3丁目34-8 周辺地図
交通機関 京成押上線 四ツ木駅 徒歩5分
京成押上線 八広駅 徒歩16分
京成押上線 京成立石駅 徒歩19分
専有面積 20㎡
所在階/地上階数 2 / 2 部屋向き
建物構造 木造 築年月 2008年3月
賃料 6.5万円 管理費等 2000円
敷金 1ヶ月 礼金 -
積増し敷金 - 積増し理由
損害保険 有 
契約形態 普通借家契約 期間 契約期間:2年
保証会社 必須 初回総賃料50%、以降年毎10,000円 保証人代行 必須
現況 入居時期 即時 
IT重説

その他

取引態様 仲介 自社管理番号 mz0000098841
情報更新日 2026年1月22日 次回更新予定日 2026年2月5日
不動産会社コード 16056 物件管理コード 1122115213330001137768
  • ※間取りの「S」はサービスルーム(納戸)です。
  • ※QRコードは(株)デンソーウェーブの登録商標です。

資料請求などはこちら

問い合わせ(無料)

TEL: 03-5243-3651

お問い合わせ番号: mz0000098841

お問い合わせ先:株式会社CLCコーポレーション 瑞江店

所在地 : 東京都江戸川区瑞江2丁目3-15ソフィアスリー3F
TEL : 03-5243-3651
免許番号 : 東京都知事(5)第83270号
加盟団体 : (公社)全日本不動産協会会員,(公社)首都圏不動産公正取引協議会加盟

この部屋を見学予約

ホームへ戻る