ラ・パイクス6112 210号室 江戸川区中葛西[マンション]

ラ・パイクス6112 210号室 江戸川区中葛西[マンション]

マンション[江戸川区中葛西]

『お部屋さがし全力サポート!』東京東エリアの賃貸物件検索サイト

  • 0120-719-686
  • 10:00~18:00/定休日:毎週火曜日(1~3月は無休)

物件詳細

ラ・パイクス6112 210号室 江戸川区中葛西[マンション]

ラ・パイクス6112 210号室 江戸川区中葛西[マンション] の物件詳細ページです。

物件種別: マンション

お問い合わせ番号:ko0000078182

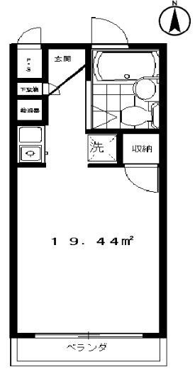
間取り(面積)

1R

( 19.44㎡ )

賃料(管理費等)

6.5万円

( 0円 )

交通: 東京メトロ東西線 葛西駅 徒歩10分

敷金/礼金: 1ヶ月 / 1ヶ月

保証金/敷引/償却金: - / - / -

所在地: 江戸川区中葛西

築年月: 1994年3月

ポイント

鉄筋コンクリート造の1Rです♪室内洗濯機置き場あり♪

問い合わせ(無料)

TEL: 03-5622-7123

お問い合わせ番号: ko0000078182

QRコード

資料請求などはこちら

問い合わせ(無料)

TEL: 03-5622-7123

お問い合わせ番号: ko0000078182

セールスポイント

特徴 防犯カメラ,2F以上,保証人(不要),カード決済可(入居時費用)
設備 ガスコンロ設置済,IHクッキングヒーター,バス有,シャワー,トイレ有,洗面台,エアコン,CATV,光ファイバー,CATVインターネット,ネット使用料不要,インターホン,給湯,電気給湯,オール電化,室内洗濯機置場,洗濯機置場,シューズボックス,収納有,電気
光ファイバー エレベーター
天井高 空調 1基
部屋外設備 ベランダ
駐車場 駐車場:無 駐輪場:有
周辺施設 コンビニ:セブンイレブン 中葛西5丁目店 119m
ドラッグストア:ウエルシア江戸川中葛西店 163m
ドラッグストア:ウエルシア薬局 江戸川中葛西店 177m
コンビニ:ファミリーマート 中葛西清砂大橋通り店 164m
コンビニ:ヤマザキデイリーストアー 長谷川店 241m

物件概要

物件名 ラ・パイクス6112 210号室
物件所在地 東京都江戸川区中葛西6丁目11-2 周辺地図
交通機関 東京メトロ東西線 葛西駅 徒歩10分
東京メトロ東西線 西葛西駅 徒歩15分
京葉線 葛西臨海公園駅 徒歩34分
専有面積 19.44㎡
所在階/地上階数 2 / 4 部屋向き
建物構造 鉄筋コンクリート 築年月 1994年3月
賃料 6.5万円 管理費等 0円
敷金 1ヶ月 礼金 1ヶ月
保証金 - 更新料 新賃料 1ヶ月
積増し敷金 - 積増し理由
損害保険 有 
契約形態 普通借家契約 期間 契約期間:2年
保証会社 必須 初回50%~ 保証人代行 必須
現況 居住中 入居時期 相談 
IT重説

その他

取引態様 仲介 自社管理番号 ko0000078182
情報更新日 2026年3月12日 次回更新予定日 2026年3月26日
不動産会社コード 2107207 物件管理コード 1122115213330001154089
  • ※間取りの「S」はサービスルーム(納戸)です。
  • ※QRコードは(株)デンソーウェーブの登録商標です。

資料請求などはこちら

問い合わせ(無料)

TEL: 03-5622-7123

お問い合わせ番号: ko0000078182

お問い合わせ先:株式会社CLCコーポレーション 小岩店

所在地 : 東京都江戸川区南小岩7丁目28-2
TEL : 03-5622-7123
免許番号 : 東京都知事(5)第83270号
加盟団体 : (公社)全日本不動産協会会員,(公社)首都圏不動産公正取引協議会加盟

この部屋を見学予約

ホームへ戻る