SKガーデン西葛西 401号室 江戸川区西葛西[マンション]

SKガーデン西葛西 401号室 江戸川区西葛西[マンション]

マンション[江戸川区西葛西]

『お部屋さがし全力サポート!』東京東エリアの賃貸物件検索サイト

  • 0120-719-686
  • 10:00~18:00/定休日:毎週火曜日(1~3月は無休)

物件詳細

SKガーデン西葛西 401号室 江戸川区西葛西[マンション]

 

SKガーデン西葛西 401号室 江戸川区西葛西[マンション] の物件詳細ページです。

物件種別: マンション

お問い合わせ番号:ks0000062871

間取り(面積)

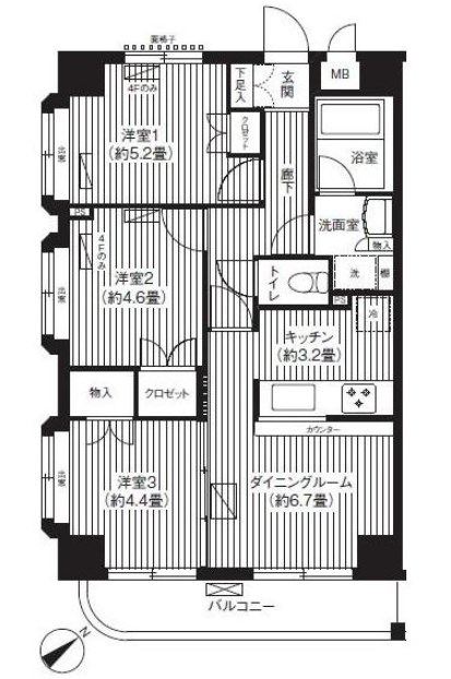
3DK

( 54.85㎡ )

賃料(管理費等)

17.2万円

( 6000円 )

交通: 東京メトロ東西線 西葛西駅 徒歩6分

敷金/礼金: 1ヶ月 / 1ヶ月

保証金/敷引/償却金: - / - / -

所在地: 江戸川区西葛西

築年月: 2001年4月

ポイント

オートロック・宅配BOXあり♪ システムキッチン・追い炊き♪

問い合わせ(無料)

TEL: 03-5667-4585

お問い合わせ番号: ks0000062871

QRコード

資料請求などはこちら

問い合わせ(無料)

TEL: 03-5667-4585

お問い合わせ番号: ks0000062871

スタッフからのコメント

本物件についてのさらに詳しい情報やご見学希望は、フリーダイヤルよりお電話をいただくか、お問い合わせフォーム・見学予約フォームよりメールにて、CLCコーポレーションまでお気軽にご連絡ください。

セールスポイント

特徴 駅まで平坦,南面バルコニー,2F以上,オートロック,玄関ホール,振り分け,角住戸,2面採光,陽当たり良好,通風良好,保証人(不要),カード決済可(入居時費用)
設備 エレベーター,敷地内ゴミ置き場,宅配BOX,システムキッチン,対面式キッチン,カウンターキッチン,ガスコンロ設置済,3口以上コンロ,グリル,バス・トイレ別,バス有,追い焚き風呂,脱衣所,シャワー,トイレ有,温水洗浄便座,洗面台,洗面所独立,洗面所にドア,洗面化粧台,エアコン,エアコン3台,CATV,光ファイバー,TVインターホン,給湯,ガス給湯,3点給湯,フローリング,全居室フローリング,室内洗濯機置場,洗濯機置場,クローゼット,クローゼット2ヶ所,シューズボックス,全居室収納,押入,収納有,収納3ヶ所,ダウンライト,ガス(都市ガス),下水(公共下水),水道(公営),電気
光ファイバー エレベーター 1基
天井高 空調 3基
部屋外設備 バルコニー
駐車場 駐車場:有(敷地内) 24200円/月~ 駐車場敷金:1ヶ月 駐車場礼金:- 駐輪場:有
周辺施設 コンビニ:セブンイレブン 江戸川西葛西4丁目店 19m
中学校:江戸川区立西葛西中学校 139m
ショッピング施設:サニーモール西葛西 293m
ドラッグストア:サンドラッグ 西葛西店 274m
小学校:江戸川区立第六葛西小学校 279m
スーパー:ワイズマート 中葛西店 310m
図書館:西葛西図書館 363m
スーパー:Y's mart(ワイズマート) 中葛西店 352m
ショッピング施設:ドン・キホーテ 葛西店 436m

物件概要

物件名 SKガーデン西葛西 401号室
物件所在地 東京都江戸川区西葛西4丁目2-14 周辺地図
交通機関 東京メトロ東西線 西葛西駅 徒歩6分
東京メトロ東西線 葛西駅 徒歩10分
東京メトロ東西線 南砂町駅 徒歩43分
間取り詳細 洋室(5.4畳) 洋室(5.3畳) 洋室(4.3畳) LDK(9.9畳)
専有面積 54.85㎡
所在階/地上階数 4 / 5 部屋向き 南東
建物構造 鉄骨鉄筋コンクリート 築年月 2001年4月
賃料 17.2万円 管理費等 6000円
敷金 1ヶ月 礼金 1ヶ月
保証金 - 更新料 新賃料 1ヶ月
積増し敷金 - 積増し理由
その他一時金 鍵交換費用:22,000円 その他費用
損害保険 有 料金:17000円 損保期間:24ヶ月 
契約形態 普通借家契約 期間 契約期間:2年
保証会社 必須 初回:総賃料の40% 月額:総賃料の1% 更新時:(通常2年毎)更新料の1% 保証人代行 必須
法人契約 相談
現況 入居時期 即時 
入居条件 ペット(不可),楽器等の使用(不可),性別(不問),子供(相談),二人(可),法人(相談)
備考 オートロック・宅配BOXあり♪ システムキッチン・追い炊き♪
IT重説

その他

取引態様 仲介 自社管理番号 ks0000062871
情報更新日 2026年3月14日 次回更新予定日 2026年3月28日
不動産会社コード 16012 物件管理コード 1122115213330001154456
  • ※間取りの「S」はサービスルーム(納戸)です。
  • ※QRコードは(株)デンソーウェーブの登録商標です。

資料請求などはこちら

問い合わせ(無料)

TEL: 03-5667-4585

お問い合わせ番号: ks0000062871

お問い合わせ先:株式会社CLCコーポレーション 葛西店

所在地 : 東京都江戸川区中葛西3丁目37-18笈川ビル2F
TEL : 03-5667-4585
免許番号 : 東京都知事(5)第83270号
加盟団体 : (公社)全日本不動産協会会員,(公社)首都圏不動産公正取引協議会加盟

この部屋を見学予約

ホームへ戻る