villa fiore 江東区北砂[アパート]

villa fiore 江東区北砂[アパート]

アパート[江東区北砂]

『お部屋さがし全力サポート!』東京東エリアの賃貸物件検索サイト

  • 0120-719-686
  • 10:00~18:00/定休日:毎週火曜日(1~3月は無休)

物件詳細

villa fiore 江東区北砂[アパート]

 

villa fiore 江東区北砂[アパート] の物件詳細ページです。

物件種別: アパート

お問い合わせ番号:ty0000057044

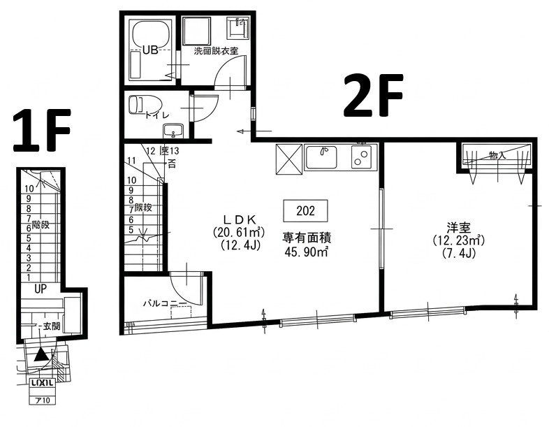
間取り(面積)

1LDK

( 45.9㎡ )

賃料(管理費等)

13.6万円

( 0円 )

交通: 都営新宿線 大島(東京)駅 徒歩10分

敷金/礼金: 1ヶ月 / 1ヶ月

保証金/敷引/償却金: - / - / -

所在地: 江東区北砂

築年月: 完成予定
2026年3月

ポイント

こちらの物件は大家さん直接取引なので交渉頑張ります!【初期費用の分割支払い(要審査)】【LINE対応】【当日予約】も可能です!あなたに合った【居場所】を見つけるお手伝いをCLCが全力でサポート致します

問い合わせ(無料)

TEL: 03-5653-0507

お問い合わせ番号: ty0000057044

QRコード

資料請求などはこちら

問い合わせ(無料)

TEL: 03-5653-0507

お問い合わせ番号: ty0000057044

セールスポイント

特徴 南面バルコニー,最上階,上階無し,2F以上,オートロック,モニタ付オートロック,当社管理物件,メゾネット,保証人(不要),カード決済可(入居時費用)
設備 敷地内ゴミ置き場,宅配BOX,システムキッチン,2口コンロ,IHクッキングヒーター,バス・トイレ別,バス有,追い焚き風呂,脱衣所,温水洗浄便座,洗面所独立,洗面所にドア,洗面化粧台,エアコン,CATV,光ファイバー,インターホン,TVインターホン,給湯,フローリング,全居室フローリング,室内洗濯機置場,クローゼット,シューズボックス,収納有,ガス(都市ガス),下水(公共下水),水道(公営),電気
光ファイバー エレベーター
天井高 空調 1基
部屋外設備 バルコニー
駐車場 駐輪場:有
周辺施設 コンビニ:ファミリーマート 江東北砂店 263m
その他:砂町銀座はた耳鼻科 432m
コンビニ:ファミリーマート 江東東砂店 290m
コンビニ:ファミリーマート 江東東砂店 290m
郵便局:江東北砂五郵便局 254m
コンビニ:ローソン 小名木川店 453m
小学校:江東区立第六砂町小学校 341m
コンビニ:サンクス 北砂5丁目店 329m
その他:こころ動物病院 340m
郵便局:江東北砂七郵便局 358m

物件概要

物件名 villa fiore
物件所在地 東京都江東区北砂5丁目17-32 周辺地図
交通機関 都営新宿線 大島(東京)駅 徒歩10分
都営新宿線 西大島駅 徒歩20分
東京メトロ東西線 南砂町駅 徒歩21分
JR総武線 亀戸 徒歩27分
専有面積 45.9㎡
所在階/地上階数 2 / 2 部屋向き
建物構造 木造 築年月 完成予定
2026年3月
賃料 13.6万円 管理費等 0円
敷金 1ヶ月 礼金 1ヶ月
積増し敷金 - 積増し理由
その他一時金 消毒施工費用:19,800円 安心入居サポート:19,800円 その他費用
損害保険 有 
契約形態 普通借家契約 期間 契約期間:2年
保証会社 必須 初回保証料:総賃料の50% その後一年ごとに一万円の継続保証料(他プラン有) 保証人代行 必須
現況 入居時期 即時 
入居条件 ペット(不可)
IT重説

その他

取引態様 仲介 自社管理番号 ty0000057044
情報更新日 2026年3月17日 次回更新予定日 2026年3月31日
不動産会社コード 63433 物件管理コード 1122115213330001155630
  • ※間取りの「S」はサービスルーム(納戸)です。
  • ※QRコードは(株)デンソーウェーブの登録商標です。

資料請求などはこちら

問い合わせ(無料)

TEL: 03-5653-0507

お問い合わせ番号: ty0000057044

お問い合わせ先:株式会社CLCコーポレーション 東陽町店

所在地 : 東京都江東区東陽4丁目1-2大朋ビル6F
TEL : 03-5653-0507
免許番号 : 東京都知事(5)第83270号
加盟団体 : (公社)全日本不動産協会会員,(公社)首都圏不動産公正取引協議会加盟

この部屋を見学予約

ホームへ戻る