サンスカイ 605号室 江戸川区南葛西[マンション]

サンスカイ 605号室 江戸川区南葛西[マンション]

マンション[江戸川区南葛西]

『お部屋さがし全力サポート!』東京東エリアの賃貸物件検索サイト

  • 0120-719-686
  • 10:00~18:00/定休日:毎週火曜日(1~3月は無休)

物件詳細

サンスカイ 605号室 江戸川区南葛西[マンション]

サンスカイ 605号室 江戸川区南葛西[マンション] の物件詳細ページです。

物件種別: マンション

お問い合わせ番号:mz0000100629

間取り(面積)

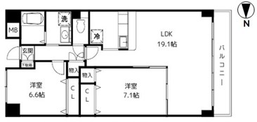
2LDK

( 69.93㎡ )

賃料(管理費等)

15.0万円

( 10000円 )

交通: 東京メトロ東西線 葛西駅 徒歩22分

敷金/礼金: 1ヶ月 / 1ヶ月

保証金/敷引/償却金: - / - / -

所在地: 江戸川区南葛西

築年月: 2004年3月

ポイント

広さが魅力の2LDK♪ 光インターネットが無料で使い放題♪

問い合わせ(無料)

TEL: 03-5243-3651

お問い合わせ番号: mz0000100629

QRコード

資料請求などはこちら

問い合わせ(無料)

TEL: 03-5243-3651

お問い合わせ番号: mz0000100629

スタッフからのコメント

本物件についてのさらに詳しい情報、または見学のご希望は、フリーダイヤルよりお電話いただくか、お問い合わせフォーム・見学予約フォームにて、CLCコーポレーションまでお気軽にご連絡ください。

セールスポイント

特徴 防犯カメラ,外壁タイル張り,駅まで平坦,閑静な住宅街,最上階,上階無し,2F以上,オートロック,ディンプルキー,セキュリティ有り,玄関ホール,振り分け,角住戸,カード決済可(入居時費用)
設備 エレベーター,敷地内ゴミ置き場,宅配BOX,対面式キッチン,カウンターキッチン,ガスコンロ設置可,2口コンロ,ガスキッチン,バス・トイレ別,バス有,オートバス,追い焚き風呂,脱衣所,風呂一坪以上,シャワー,トイレ有,温水洗浄便座,洗面台,洗面所独立,洗面所にドア,洗面化粧台,シャワー付洗面台,エアコン,CATV,ネット専用回線,光ファイバー,ネット使用料不要,インターホン,給湯,ガス給湯,3点給湯,フローリング,室内洗濯機置場,洗濯機置場,クローゼット,シューズボックス,玄関収納,全居室収納,押入,収納有,ガス(都市ガス),電気
光ファイバー エレベーター 1基
天井高 空調 1基
部屋外設備 バルコニー
駐車場 駐車場:要問い合わせ 20900~23100円/月 駐輪場:有 バイク置き場:有
周辺施設 スーパー:まいばすけっと 南葛西1丁目店 589m
幼稚園:子ばと保育園 363m
ドラッグストア:つくし薬局南葛西店 350m
幼稚園:堀江保育園 354m
レストラン:スシロー 南葛西店 404m
公園:左近川親水公園 609m
公園:区立総合レクリエーション公園 745m
スーパー:ベルク 江戸川臨海店 628m

物件概要

物件名 サンスカイ 605号室
物件所在地 東京都江戸川区南葛西3丁目12-5 周辺地図
交通機関 東京メトロ東西線 葛西駅 徒歩22分
京葉線 葛西臨海公園駅 徒歩20分
東京メトロ東西線 西葛西駅 徒歩26分
間取り詳細 洋室(6.6畳) 洋室(7.1畳) LDK(19.1畳)
専有面積 69.93㎡
所在階/地上階数 6 / 10 部屋向き 西
建物構造 鉄骨鉄筋コンクリート 築年月 2004年3月
総戸数 44
賃料 15.0万円 管理費等 10000円
敷金 1ヶ月 礼金 1ヶ月
保証金 - 更新料 新賃料 1ヶ月
積増し敷金 - 積増し理由
その他一時金 鍵交換費用:24,200円 UMライフサポートクラブ:22,000円 安心サポート:16,500円 その他費用
損害保険 有 料金:20000円 損保期間:24ヶ月 
契約形態 普通借家契約 期間 契約期間:2年
保証会社 必須 初回保証料:月額家賃総額の50% 月額保証料1% 保証人代行 必須
法人契約 相談
現況 居住中 入居時期 相談 
入居条件 ペット(不可),事務所(不可),楽器等の使用(不可),性別(不問),子供(相談),単身(相談),二人(可),法人(相談),ルームシェア(不可),友人同士(不可)
IT重説

その他

取引態様 仲介 自社管理番号 mz0000100629
情報更新日 2026年3月24日 次回更新予定日 2026年4月7日
不動産会社コード 16056 物件管理コード 1122115213330001157345
  • ※間取りの「S」はサービスルーム(納戸)です。
  • ※QRコードは(株)デンソーウェーブの登録商標です。

資料請求などはこちら

問い合わせ(無料)

TEL: 03-5243-3651

お問い合わせ番号: mz0000100629

お問い合わせ先:株式会社CLCコーポレーション 瑞江店

所在地 : 東京都江戸川区瑞江2丁目3-15ソフィアスリー3F
TEL : 03-5243-3651
免許番号 : 東京都知事(5)第83270号
加盟団体 : (公社)全日本不動産協会会員,(公社)首都圏不動産公正取引協議会加盟

この部屋を見学予約

ホームへ戻る