ドミールエムエス 葛飾区東新小岩[マンション]

ドミールエムエス 葛飾区東新小岩[マンション]

マンション[葛飾区東新小岩]

『お部屋さがし全力サポート!』東京東エリアの賃貸物件検索サイト

  • 0120-719-686
  • 10:00~18:00/定休日:毎週火曜日(1~3月は無休)

棟詳細

ドミールエムエス 葛飾区東新小岩 マンション

ドミールエムエス 葛飾区東新小岩[マンション]の棟詳細ページです。

物件種別:マンション

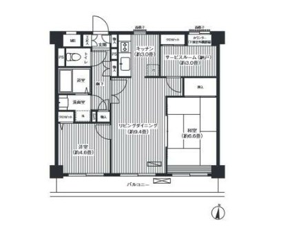
間取り(面積)

2SLDK

( 59.63㎡)

賃料

12.7万円

交通: 総武線快速 新小岩駅 徒歩17分

所在地: 葛飾区東新小岩

築年月: 2000年3月

管理費等の月次金がかかることがあります。詳細は各部屋のページでご確認ください。

ポイント

RC造としっかりした造り♪陽当たり良好♪


  • ※代表的なお部屋の写真と物件情報になります。タイプによっては一部仕様・眺望等が異なる場合があります。
  • ※お部屋により現況と異なる場合は現況を優先いたします。



所在地 東京都葛飾区東新小岩8丁目30-17 周辺地図
交通 総武線快速 新小岩駅 徒歩17分
京成押上線 京成立石駅 徒歩23分
京成押上線 青砥駅 徒歩31分
賃料 12.7万円
築年月 2000年3月 (築25年)
建物構造 鉄筋コンクリート 登録空きフロア計 119.26㎡ (36.07坪)
総戸数 規模 5階建/ -



所在階 賃料 管理費/共益費 敷金/礼金 間取り 専有面積 詳細

3階 12.7万円

-

/ 8000円

1ヶ月

/ 1ヶ月

2SLDK

59.63㎡

(18.03坪)

ドミールエムエス の詳細ページ

3階 12.7万円

-

/ 8000円

1ヶ月

/ 1ヶ月

2SLDK

59.63㎡

(18.03坪)

ドミールエムエス の詳細ページ


  • ※間取りの「S」はサービスルーム(納戸)です。

ホームへ戻る