GRACE HILL 荒川区南千住[マンション]

GRACE HILL 荒川区南千住[マンション]

マンション[荒川区南千住]

『お部屋さがし全力サポート!』東京東エリアの賃貸物件検索サイト

  • 0120-719-686
  • 10:00~18:00/定休日:毎週火曜日(1~3月は無休)

棟詳細

GRACE HILL 荒川区南千住 マンション

GRACE HILL 荒川区南千住[マンション]の棟詳細ページです。

物件種別:マンション

間取り(面積)

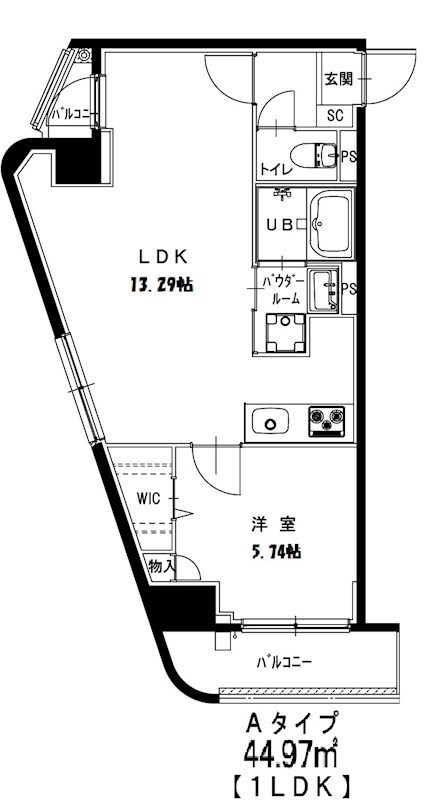
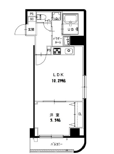
1LDK

( 41.35㎡)

賃料

15.2万円

交通: 東京メトロ日比谷線 南千住駅 徒歩4分

所在地: 荒川区南千住

築年月: 2016年9月

管理費等の月次金がかかることがあります。詳細は各部屋のページでご確認ください。

ポイント

築浅1LDK♪室内、共有部分設備充実しております♪


  • ※代表的なお部屋の写真と物件情報になります。タイプによっては一部仕様・眺望等が異なる場合があります。
  • ※お部屋により現況と異なる場合は現況を優先いたします。



所在地 東京都荒川区南千住3丁目4-23 周辺地図
交通 東京メトロ日比谷線 南千住駅 徒歩4分
東京メトロ日比谷線 三ノ輪駅 徒歩9分
都電荒川線 三ノ輪橋駅 徒歩12分
賃料 15.2万円
築年月 2016年9月 (築9年)
延床面積 39.42㎡ (11.92坪)
建物構造 鉄筋コンクリート 登録空きフロア計 124.05㎡ (37.52坪)
総戸数 規模 6階建/ -



所在階 賃料 管理費/共益費 敷金/礼金 間取り 専有面積 詳細

3階 15.2万円

-

/ 10000円

1ヶ月

/ 1ヶ月

1LDK

41.35㎡

(12.5坪)

GRACE HILL の詳細ページ

3階 15.2万円

-

/ 10000円

1ヶ月

/ 1ヶ月

1LDK

41.35㎡

(12.5坪)

GRACE HILL の詳細ページ

3階 15.2万円

-

/ 10000円

1ヶ月

/ 1ヶ月

1LDK

41.35㎡

(12.5坪)

GRACE HILL の詳細ページ


  • ※間取りの「S」はサービスルーム(納戸)です。

ホームへ戻る