オクドテラス 葛飾区奥戸[アパート]

オクドテラス 葛飾区奥戸[アパート]

アパート[葛飾区奥戸]

『お部屋さがし全力サポート!』東京東エリアの賃貸物件検索サイト

  • 0120-719-686
  • 10:00~18:00/定休日:毎週火曜日(1~3月は無休)

棟詳細

オクドテラス 葛飾区奥戸 アパート

オクドテラス 葛飾区奥戸[アパート]の棟詳細ページです。

物件種別:アパート

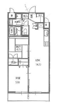
間取り(面積)

1LDK

( 55.5㎡)

賃料

11.6万円

交通: 総武線快速 新小岩駅 徒歩19分

所在地: 葛飾区奥戸

築年月: 2012年10月

管理費等の月次金がかかることがあります。詳細は各部屋のページでご確認ください。

ポイント

設備充実のマンション!ご家族にピッタリですね


  • ※代表的なお部屋の写真と物件情報になります。タイプによっては一部仕様・眺望等が異なる場合があります。
  • ※お部屋により現況と異なる場合は現況を優先いたします。



所在地 東京都葛飾区奥戸3丁目22-14 周辺地図
交通 総武線快速 新小岩駅 徒歩19分
京成押上線 京成立石駅 徒歩25分
京成押上線 青砥駅 徒歩33分
賃料 11.6万円
築年月 2012年10月 (築13年)
建物構造 軽量鉄骨 登録空きフロア計 277.5㎡ (83.94坪)
総戸数 規模 4階建/ -



所在階 賃料 管理費/共益費 敷金/礼金 間取り 専有面積 詳細

2階 11.6万円

-

/ 10000円

1ヶ月

/ 1ヶ月

1LDK

55.5㎡

(16.78坪)

オクドテラス の詳細ページ

2階 11.6万円

-

/ 10000円

1ヶ月

/ 1ヶ月

1LDK

55.5㎡

(16.78坪)

オクドテラス の詳細ページ

2階 11.6万円

-

/ 10000円

1ヶ月

/ 1ヶ月

1LDK

55.5㎡

(16.78坪)

オクドテラス の詳細ページ

2階 11.6万円

-

/ 10000円

1ヶ月

/ 1ヶ月

1LDK

55.5㎡

(16.78坪)

オクドテラス の詳細ページ

2階 11.6万円

-

/ 10000円

1ヶ月

/ 1ヶ月

1LDK

55.5㎡

(16.78坪)

オクドテラス の詳細ページ


  • ※間取りの「S」はサービスルーム(納戸)です。

ホームへ戻る