リブリ・フルール 江戸川区中央[マンション]

リブリ・フルール 江戸川区中央[マンション]

マンション[江戸川区中央]

『お部屋さがし全力サポート!』東京東エリアの賃貸物件検索サイト

  • 0120-719-686
  • 10:00~18:00/定休日:毎週火曜日(1~3月は無休)

物件詳細

リブリ・フルール 江戸川区中央[マンション]

リブリ・フルール 江戸川区中央[マンション] の物件詳細ページです。

物件種別: マンション

お問い合わせ番号:ko0000076695

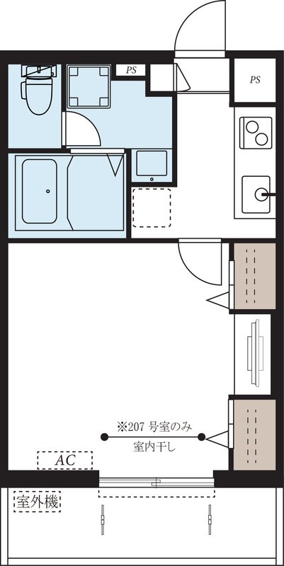
間取り(面積)

1K

( 26.08㎡ )

賃料(管理費等)

7.9万円

( 4000円 )

交通: 中央・総武線各停 新小岩駅 徒歩27分

敷金/礼金: - / 1ヶ月

保証金/敷引/償却金: - / - / -

所在地: 江戸川区中央

築年月: 2023年8月

ポイント

セコム導入 ネット無料 宅配BOX完備 豊富な収納

問い合わせ(無料)

TEL: 03-5622-7123

お問い合わせ番号: ko0000076695

QRコード

資料請求などはこちら

問い合わせ(無料)

TEL: 03-5622-7123

お問い合わせ番号: ko0000076695

セールスポイント

特徴 セキュリティ有り,カード決済可(入居時費用)
設備 宅配BOX,システムキッチン,ガスコンロ設置済,2口コンロ,ガスキッチン,バス・トイレ別,バス有,浴室乾燥,脱衣所,シャワー,トイレ有,温水洗浄便座,洗面台,洗面所独立,洗面所にドア,洗面化粧台,エアコン,光ファイバー,ネット使用料不要,TVインターホン,給湯,ガス給湯,3点給湯,フローリング,全居室フローリング,室内洗濯機置場,クローゼット,シューズボックス,収納有,ガス(都市ガス),電気
光ファイバー エレベーター
天井高 空調 1基
部屋外設備 バルコニー
駐車場 駐輪場:有
周辺施設 コンビニ:セブンイレブン 江戸川中央2丁目店 64m
コンビニ:ローソン 江戸川中央店 145m
スーパー:まいばすけっと 216m
幼稚園:大杉神明幼稚園 264m
スーパー:ヤマイチ 中央店 222m
スーパー:ヤマイチ中央店 225m
ドラッグストア:スギドラッグ 江戸川南店 182m
スーパー:アタック 中央店 262m

物件概要

物件名 リブリ・フルール
物件所在地 東京都江戸川区中央2丁目22-2 周辺地図
交通機関 中央・総武線各停 新小岩駅 徒歩27分
都営新宿線 一之江駅 徒歩37分
都営新宿線 船堀駅 徒歩35分
間取り詳細 洋室(7.9畳) K(2畳)
専有面積 26.08㎡
所在階/地上階数 3 / 3 部屋向き
建物構造 鉄骨 築年月 2023年8月
賃料 7.9万円 管理費等 4000円
敷金 - 礼金 1ヶ月
積増し敷金 - 積増し理由
その他一時金 退去時クリーニング費:41,800円 リブリクラブ入会費:7,700円 鍵交換代:24,200円 室内消毒費:16,500円 その他費用
その他月次費用 クラブ会費:2,200円
損害保険 有 料金:19000円 
契約形態 普通借家契約 期間 契約期間:2年
保証会社 可 初回総賃料の100% 月額1.1% 保証人代行
現況 居住中 入居時期 予定 2026年1月下旬
入居条件 事務所(不可),単身(限定),二人(不可)
IT重説

その他

取引態様 仲介 自社管理番号 ko0000076695
情報更新日 2025年12月25日 次回更新予定日 2026年1月8日
不動産会社コード 2107207 物件管理コード 1122115213330001131368
  • ※間取りの「S」はサービスルーム(納戸)です。
  • ※QRコードは(株)デンソーウェーブの登録商標です。

資料請求などはこちら

問い合わせ(無料)

TEL: 03-5622-7123

お問い合わせ番号: ko0000076695

お問い合わせ先:株式会社CLCコーポレーション 小岩店

所在地 : 東京都江戸川区南小岩7丁目28-2
TEL : 03-5622-7123
免許番号 : 東京都知事(5)第83270号
加盟団体 : (公社)全日本不動産協会会員,(公社)首都圏不動産公正取引協議会加盟

この部屋を見学予約

ホームへ戻る