ワコーレ錦糸町マンション 墨田区江東橋[マンション]

ワコーレ錦糸町マンション 墨田区江東橋[マンション]

マンション[墨田区江東橋]

『お部屋さがし全力サポート!』東京東エリアの賃貸物件検索サイト

  • 0120-719-686
  • 10:00~18:00/定休日:毎週火曜日(1~3月は無休)

物件詳細

ワコーレ錦糸町マンション 墨田区江東橋[マンション]

ワコーレ錦糸町マンション 墨田区江東橋[マンション] の物件詳細ページです。

物件種別: マンション

お問い合わせ番号:kn0000067703

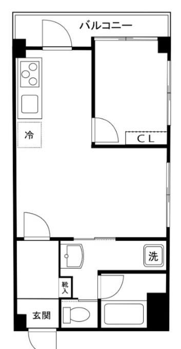
間取り(面積)

1LDK

( 40.46㎡ )

賃料(管理費等)

18.0万円

( 0円 )

交通: 総武線快速 錦糸町駅 徒歩5分

敷金/礼金: 1ヶ月 / 1ヶ月

保証金/敷引/償却金: - / - / -

所在地: 墨田区江東橋

築年月: 1978年4月

ポイント

システムキッチン・独立洗面台つき1LDKマンション!

問い合わせ(無料)

TEL: 03-5637-3071

お問い合わせ番号: kn0000067703

QRコード

資料請求などはこちら

問い合わせ(無料)

TEL: 03-5637-3071

お問い合わせ番号: kn0000067703

セールスポイント

特徴 駅まで平坦,閑静な住宅街,南面バルコニー,内装リフォーム済,リノベーション,2F以上,角住戸,2面採光,陽当たり良好,眺望良好,保証人(要),カード決済可(入居時費用)
設備 エレベーター,敷地内ゴミ置き場,内階段,システムキッチン,ガスコンロ設置済,2口コンロ,3口以上コンロ,グリル,ガスキッチン,バス・トイレ別,バス有,オートバス,追い焚き風呂,脱衣所,シャワー,トイレ有,温水洗浄便座,洗面台,洗面所独立,洗面所にドア,洗面化粧台,エアコン,CATV,光ファイバー,インターネット専用線配線済み,インターホン,TVインターホン,給湯,ガス給湯,3点給湯,フローリング,全居室フローリング,室内洗濯機置場,洗濯機置場,クローゼット,シューズボックス,収納有,ガス(都市ガス),水道(公営),電気
光ファイバー エレベーター 1基
天井高 空調 1基
部屋外設備 バルコニー
駐車場 駐輪場:有
周辺施設 コンビニ:セブンイレブン 墨田江東橋3丁目店 276m
ショッピング施設:丸井 錦糸町店 334m
コンビニ:セブンイレブン 江東毛利店 421m
ショッピング施設:錦糸町ステーションビルテルミナ 467m
ショッピング施設:テルミナ 478m
ショッピング施設:アルカキット錦糸町 414m
ショッピング施設:テルミナ2 547m

物件概要

物件名 ワコーレ錦糸町マンション
物件所在地 東京都墨田区江東橋2丁目8-1 周辺地図
交通機関 総武線快速 錦糸町駅 徒歩5分
東京メトロ半蔵門線 錦糸町駅 徒歩5分
都営新宿線 住吉(東京)駅 徒歩10分
間取り詳細 LDK(8畳) 洋室(7畳)
専有面積 40.46㎡
所在階/地上階数 7 / 8 部屋向き
建物構造 鉄筋コンクリート 築年月 1978年4月
賃料 18.0万円 管理費等 0円
敷金 1ヶ月 礼金 1ヶ月
保証金 - 更新料 新賃料 1.05ヶ月
積増し敷金 - 積増し理由
その他一時金 鍵交換費用:35,200円 UMライフサポートクラブ:22,000円 その他費用 短期違約金あり 1年未満の解約で総賃料の1ヶ月分
損害保険 無 
契約形態 普通借家契約 期間 契約期間:2年
保証会社 必須 賃料など合計の60% 以後2年毎20,000円 月額1.3%(税別) 保証人代行 必須
現況 入居時期 相談 
IT重説

その他

取引態様 仲介 自社管理番号 kn0000067703
情報更新日 2026年1月22日 次回更新予定日 2026年2月5日
不動産会社コード 6878 物件管理コード 1122115213330001137805
  • ※間取りの「S」はサービスルーム(納戸)です。
  • ※QRコードは(株)デンソーウェーブの登録商標です。

資料請求などはこちら

問い合わせ(無料)

TEL: 03-5637-3071

お問い合わせ番号: kn0000067703

お問い合わせ先:株式会社CLCコーポレーション 錦糸町店

所在地 : 東京都墨田区錦糸3丁目4-10東越ビル4F
TEL : 03-5637-3071
免許番号 : 東京都知事(5)第83270号
加盟団体 : (公社)全日本不動産協会会員,(公社)首都圏不動産公正取引協議会加盟

この部屋を見学予約

ホームへ戻る