タイガーアパートメント 墨田区八広[マンション]

タイガーアパートメント 墨田区八広[マンション]

マンション[墨田区八広]

『お部屋さがし全力サポート!』東京東エリアの賃貸物件検索サイト

  • 0120-719-686
  • 10:00~18:00/定休日:毎週火曜日(1~3月は無休)

物件詳細

タイガーアパートメント 墨田区八広[マンション]

 

タイガーアパートメント 墨田区八広[マンション] の物件詳細ページです。

物件種別: マンション

お問い合わせ番号:as0000055522

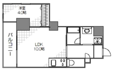
間取り(面積)

1LDK

( 37.09㎡ )

賃料(管理費等)

14.0万円

( 10000円 )

交通: 京成押上線 京成曳舟駅 徒歩7分

敷金/礼金: 1ヶ月 / 1ヶ月

保証金/敷引/償却金: - / - / -

所在地: 墨田区八広

築年月: 新築
2026年1月

ポイント

2026年1月の新築物件!嬉しいインターネット使用料無料!単身でもカップルでもちょうどいいサイズ感!大型スーパーも至近で住環境良好!

問い合わせ(無料)

TEL: 03-5826-3730

お問い合わせ番号: as0000055522

QRコード

資料請求などはこちら

問い合わせ(無料)

TEL: 03-5826-3730

お問い合わせ番号: as0000055522

セールスポイント

特徴 防犯カメラ,駅まで平坦,閑静な住宅街,2F以上,オートロック,モニタ付オートロック,玄関ホール,角住戸,2面採光,陽当たり良好,通風良好
設備 エレベーター,敷地内ゴミ置き場,宅配BOX,システムキッチン,ガスコンロ設置済,3口以上コンロ,グリル,ガスキッチン,バス・トイレ別,バス有,追い焚き風呂,浴室乾燥,脱衣所,温水洗浄便座,洗面所独立,洗面化粧台,エアコン,ネット専用回線,ネット使用料不要,インターホン,TVインターホン,給湯,ガス給湯,フローリング,全居室フローリング,室内洗濯機置場,クローゼット,シューズボックス,収納有,ガス(都市ガス),電気
光ファイバー エレベーター 1基
天井高 空調 1基
部屋外設備 バルコニー
駐車場 駐車場:要問い合わせ 駐輪場:有
周辺施設 スーパー:ローソンストア100 墨田区八広店 85m
コンビニ:セブンイレブン 墨田八広南店 163m
スーパー:Big-A(ビッグ・エー) 墨田京島店 190m
ショッピング施設:下町人情キラキラ橘商店街 188m
スーパー:ヒルママーケットプレイス 326m
コンビニ:セブン-イレブン 墨田京島3丁目明治通り店 333m

物件概要

物件名 タイガーアパートメント
物件所在地 東京都墨田区八広2丁目16-10 周辺地図
交通機関 京成押上線 京成曳舟駅 徒歩7分
東武伊勢崎線 曳舟駅 徒歩12分
東武スカイツリーライン 東向島駅 徒歩17分
専有面積 37.09㎡
所在階/地上階数 2 / 9 部屋向き
建物構造 鉄筋コンクリート 築年月 新築
2026年1月
賃料 14.0万円 管理費等 10000円
敷金 1ヶ月 礼金 1ヶ月
保証金 - 更新料 新賃料 1ヶ月
積増し敷金 - 積増し理由
その他一時金 ホームアシスト24:16,500円 その他費用 ※短期解約違約金あり
損害保険 有 
契約形態 普通借家契約 期間 契約期間:2年
保証会社 必須 初回保証料:総賃料の50%~ 保証人代行 必須
現況 入居時期 即時 
入居条件 子供(相談),単身(可),二人(可)

その他

取引態様 仲介 自社管理番号 as0000055522
情報更新日 2026年4月14日 次回更新予定日 2026年4月28日
不動産会社コード 2101160 物件管理コード 1122115213330001147879
  • ※間取りの「S」はサービスルーム(納戸)です。
  • ※QRコードは(株)デンソーウェーブの登録商標です。

資料請求などはこちら

問い合わせ(無料)

TEL: 03-5826-3730

お問い合わせ番号: as0000055522

お問い合わせ先:株式会社CLCコーポレーション 浅草店

所在地 : 東京都台東区花川戸1丁目5-2サテライトフジビル10F
TEL : 03-5826-3730
免許番号 : 東京都知事(5)第83270号
加盟団体 : (公社)全日本不動産協会会員,(公社)首都圏不動産公正取引協議会加盟

この部屋を見学予約

ホームへ戻る